- 建物付き物件
- 物件番号:B24011
麦草平 5LDK+ホール+2物置、別棟カフェテラス

価格47,300,000円(税込)
| 地区 | 麦草平全体図地区PDF |
|---|---|
| 間取り | 5LDK+ホール+2物置、別棟カフェテラス |
| 築年 | 2021年(令和3年) |
| 土地面積 | 2,605.15㎡(787.00坪) |
| 排水処理 | 蓼科ビレッジ下水道 |
| 地勢 | 平坦地 |
価格改定4,730万円(税込)(新価格2025年11月11日公表)
YouTube 【ROOM TOUR】蓼科の静寂と自然に包まれた別荘をご紹介にて動画を公開
隣接する2区画の一方に音楽ホールがありもう一方には別棟カフェテラスがあります
2区画あわせての取引となります
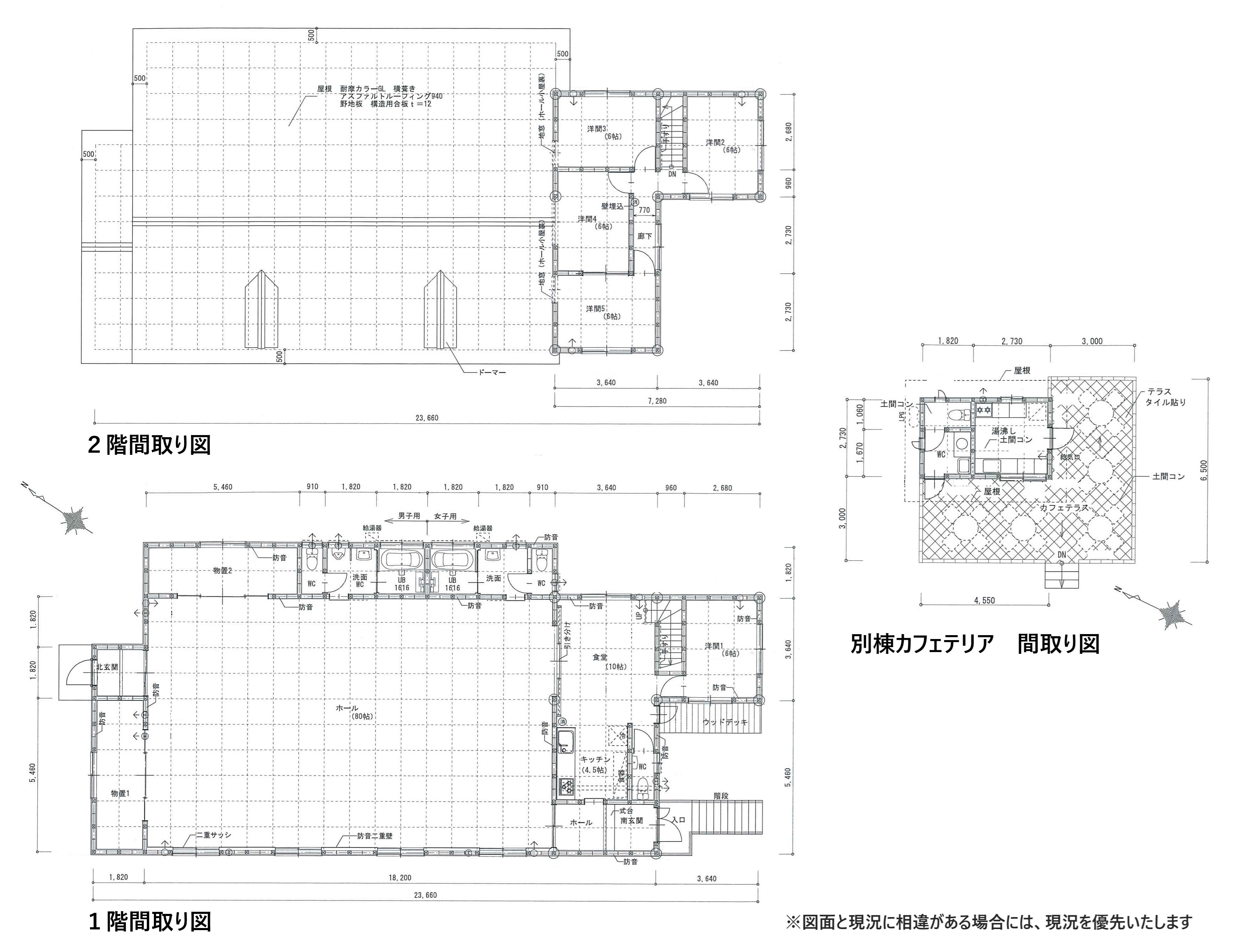
音楽ホール:5LDK+ホール+2物置、薪ストーブ2台、ガスコンロ、追焚付ガス給湯器2台、ガス給湯器1台、ペアガラス、ホールの窓はペアガラスの2重サッシ
ホール横には、洗面・トイレ・ユニットバスが男性用・女性用それぞれあります
※ダイニングキッチン横にもトイレあり
別棟カフェテラス:調理室+手洗い・トイレを備えます
ガスコンロ、ガス給湯、駐車複数台可、標高約1,660m
床面積は音楽ホール1階:218.62、2階:46.38、別棟カフェテラス:12.42
物件詳細情報
| 所在地 | 長野県茅野市北山5513-348 |
|---|---|
| 交通(電車) | 中央本線茅野駅下車、蓼科ビレッジ管理センターまで16km |
| 交通(車) | 中央高速新宿から約3時間、名古屋から約3時間 |
| 取引様態 | 媒介 |
| 土地敷地面積 | 2,605.15㎡(787.00坪) |
| 土地標高 | 約1,660m |
| 土地地目 | 原野 |
| 土地権利形態 | 借地権 |
| 土地財産管理者 | 茅野市長 |
| 土地所有者 | 茅野市外山財産区 |
| 土地借地権者 | 株式会社蓼科ビレッジ |
| 土地借地期間 | 30年、最初の更新後20年、2回目以降の更新後10年 |
| 建物延べ床面積(登記簿面積または課税床面積) | 265.00㎡ |
| 建物構造 | 音楽ホール:木造合金メッキ鋼板葺2階建、別棟カフェテラス:木造合金メッキ鋼板葺平家建 |
| 建物築年数 | 2021年(令和3年) |
| 建物間取り | 5LDK+ホール+2物置、別棟カフェテラス |
| 建物権利形態 | 所有権 |
| 用途地域 | 指定無し |
| 都市計画 | 都市計画区域内非線引区域 |
| 建ぺい率 | 20% |
| 容積率 | 40% |
| 高さ制限 | 10m以下 |
| 道路 | 西側4m 北側4m |
| 電気 | 中部電力ミライズ株式会社 |
| ガス | プロパンガス |
| 上水道 | 蓼科ビレッジ上水道 |
| トイレ | 蓼科ビレッジ下水道 |
| 駐車スペース | 2台以上 |
| その他の制限 | 自然公園法、茅野市景観づくり条例、茅野市生活環境保全条例、他 |
| 現況 | 利用中 |
| 引渡し時期 | 要相談 |
| 主な設備 |
|
| 媒介手数料(契約時一時金) | 1,501,500円 |
| 借地権名義変更事務手数料(契約時一時金) | 200,000円 |
| 転貸借料(年間) | 236,100円 |
| 管理費(年間) | 個人名義:105,600円 法人名義:158,400円 |
| 給水基本料金(年間) | 39,600円 |
| 給水計器使用料金(年間) | 3,300円 |
| 下水道基本料金(年間) | 33,000円 |
| 上水道整備充実費(年間) | 10,000円 |
| 下水道整備充実費(年間) | 2,000円 |
| 更新日 | 2025年11月11日 |
お電話でのお問い合わせはこちら営業部:0266-67-2411




























































































